Boligserien “Addetto”

Boligserien “Addetto” inneholder flere versjoner med tilpasning av bolig, anneks og garasjer i ulike størrelser og til varierende bruksområder. Utgangspunktet er følgende varianter:

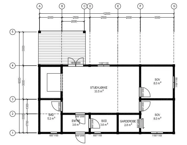
Alternativ 1: Bolig på 72 kvm med to soverom, og åpen stue- og kjøkkenløsning, bad samt bod og walk-in garderobe. Tegninger på denne finner du her.

Alternativ 2: Bolig på 48 kvm og med ett soverom. Denne har åpen stue- og kjøkkenløsning samt bad.

Alternativ 3: Bolig på 60 kvm med to soverom, og åpen stue- og kjøkkenløsning, bad samt bod.

Disse boligene kan leveres alene eller som leiligheter i rekke. Vi kan også tilpasse dem etter deres ønsker og behov.

Andre alternativer: Siden vi har god erfaring med å tegne nye bygg etter ønsker fra våre kunder har vi også utformet versjoner med én og en halv etasje, to fulle etasjer, firemannsbolig, forlengede varianter over ett plan, men også anneks og tilhørende garasjer. Felles er at alle byggene leveres i samme stil.

Er du nysgjerrig på våre andre varianter? Ta en titt på noen eksempler her. Nøl ikke med å ta kontakt for mer informasjon om byggene.

Utforming og byggestil

 Våre mest vanlige tilpasninger

Alternativ 1: 72 kvm og to soverom (utvendig)

Alternativ 1: 72 kvm og to soverom (innvendig)

Alternativ 2: 48 kvm og ett soverom

Alternativ 3: 60 kvm og to soverom

Interiør

Innvendig tilpasser vi bygget til deres ønsker. Mange har bedt om nordisk stil og mørk beis, noe som gir et elegant inntrykk og følelsen av ro.

“Mogoptunet” i Svullrya

Vi jobber for tiden med et større prosjekt i Svullrya ved navn Mogoptunet. Midt i bygda skal det bygges fire eneboliger i samme tomteområde, og disse kommer for salg i første halvdel av 2023. Byggestilen vil være slik Addetto er kjent for. Ta gjerne en titt på tomteplasseringen hos Kartverket og boligplasseringene på vår oversiktstegning.